

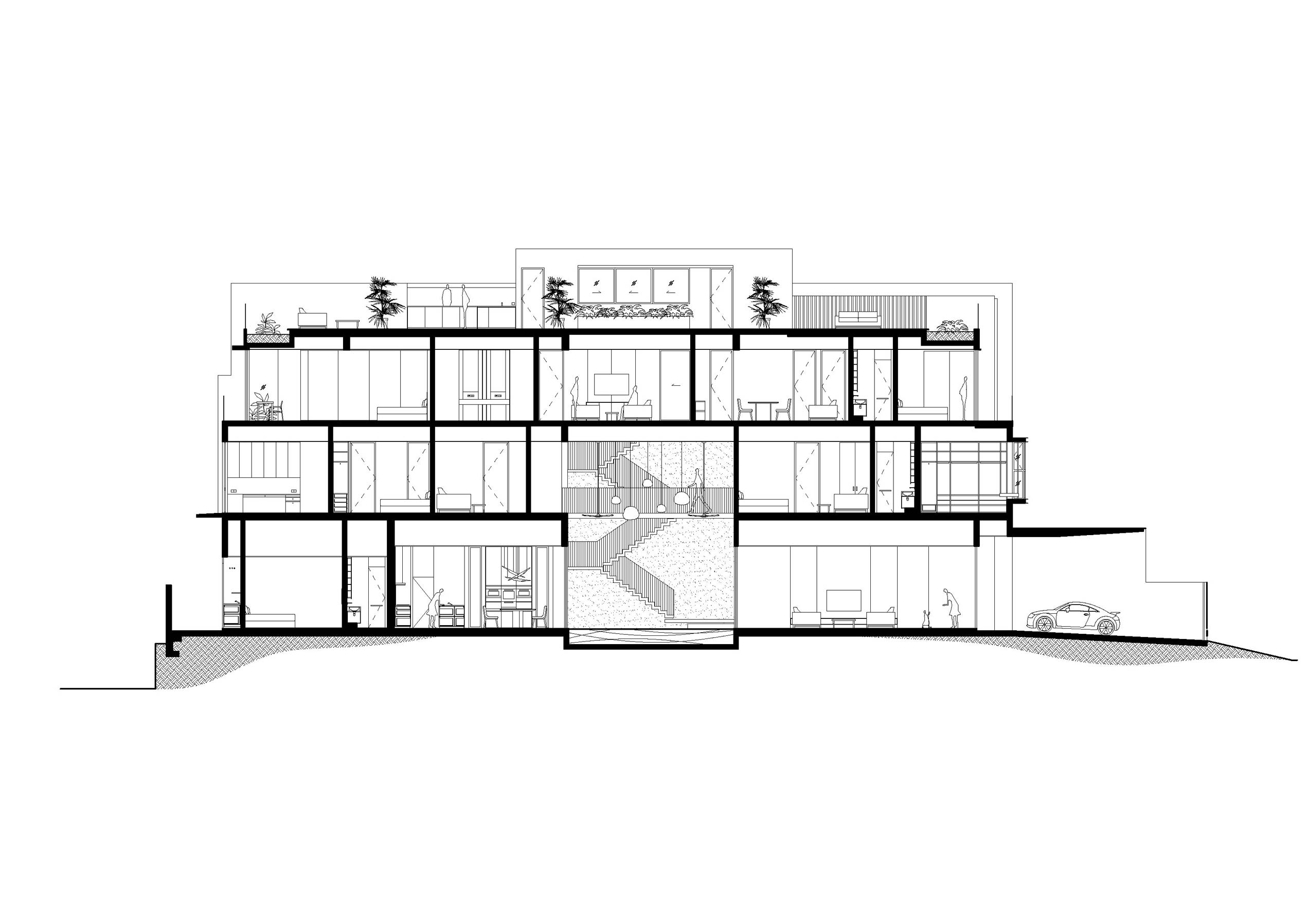
Nằm giữa hồ cá koi và hồ bơi, khoảng sân đôi - điểm tựa cho ngôi nhà, được giới thiệu để phá vỡ sự đơn điệu của không gian trong ngôi nhà tuyến tính này. Chuyển động ngang và dọc là vô tận và ánh sáng ban ngày tràn ngập các không gian sống chính trong ngôi nhà tuyến tính này. Một cầu thang bằng thép cao ba tầng nổi lên trên hồ cá koi, với một bức tường đặc trưng thẳng đứng của đá cuội sông đen làm nền. Một cây cầu mỏng treo trên sân và buộc cánh trước và sau của ngôi nhà.
Trên hồ cá koi trung tâm nổi một cầu thang bằng thép lớn kéo dài 3 tầng, với một bức tường đá cuội màu đen thẳng đứng làm nền vải. dải gỗ tếch xếp dọc trần nhà và đóng vai trò là tấm chắn trên các bức tường bên ngoài của ngôi nhà, tạo ra sự tương phản ấm áp với lớp hoàn thiện bằng đá cẩm thạch trắng bóng mượt và bức tường đá cuội màu đen trong lòng ngôi nhà.
Ngôi nhà bao gồm kiến trúc tuyến tính đẹp, mạnh mẽ với nhiều dấu chấm câu với các kích cỡ khác nhau, hoàn chỉnh với ban công và màn hình gỗ trên mặt tiền của nó. Với một chi tiết tường vát đồng nhất, mặt tiền màu trắng bóng mát được bổ sung bởi các yếu tố gỗ ấm áp và tiếp tục được làm mềm với cảnh quan. Cùng nhau, họ cố gắng tạo ra một triển vọng đơn giản nhưng tinh vi.
Được gọi là một bữa tiệc thị giác, bên trong là một lớp không gian trực quan, trong đó chúng được xếp chồng lên nhau. Một người đi qua những không gian này một cách trôi chảy, không có kinh nghiệm điển hình về hành lang. Khi các cánh cửa gấp được đóng hoàn toàn, các ranh giới mờ đi giữa các không gian và các hoạt động tràn sang nhau.
Ngôi nhà được đặt ở vị trí cao hơn, tự nhiên có tầm nhìn không bị cản trở đến những cây xanh xung quanh. Tận dụng tầm nhìn này, cùng với việc kích hoạt máy bay trên mái lên sân thượng, cho phép khách hàng - những người thường xuyên giải trí cho khách - mở rộng các khu vực giải trí của họ ra ngoài mặt phẳng mặt đất và lên mái nhà này, thông qua cầu thang có tường bằng đá cuội.
















Ming Architects - Architects in Singapore
